Máy hút thổi bột do Máy nhựa Việt Đài cung cấp, có năng suất đạt 1300~2000kg/h, áp suất từ 0.6 Mpa đến 0.8Mpa. Lắp đặt nhanh chóng, bảo hành 12 tháng
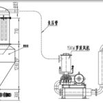
Máy hút thổi bột chân không công suất lớn có cấu hình như sau:
| Tên thiết bị | Số lượng | Thông số | |
| Quạt xoáy 2 cấp | 1 bộ | 15kW NSR125 | |
| Bộ lọc | Thanh lọc | 19 cái | φ75*600 |
| Hệ thống xả | Bộ xả | 1 bộ | DN200 |
| Máy rung | 1 bộ | GT10 | |
| Thiết bị đo mức NVL | 1 cái | ZP25 ADS | |
| Thùng chứa | 1 cái | Thép không gỉ 304 | |
| Ống hút | 30m | Φ76mm; Ống PVC mềm lõi thép | |
| Ống áp suất tâm | 5m | Φ89mm. Ống PVC mềm lõi thép | |
| Tủ điều khiển | Bảng mạch điện tử | 1 bộ | Độc lập |
| Bộ chuyển mạch | 1 cái | Mingwei Đài Loan | |
| Linh kiện điện | 1 bộ | Chint | |
| Van điện từ | 1 cái | SMC | |
| Các bộ phận tiếp xúc giữa máy và nguyên liệu đều được làm bằng inox 304. | |||
Xem thêm:










Hãy để lại thông tin, chuyên viên tư vấn của chúng tôi sẽ gọi ngay cho bạn miễn phí!


Đánh giá
Chưa có đánh giá nào.